ATENÇÃO Este site utiliza cookies. Ao navegar no site estará a consentir a sua utilização. Saiba mais sobre o uso de cookies.

Apartamento 4 Quartos

S.Julião, N.S. da Anunciada e S.Maria da Graça, Setúbal (Setúbal)

205 000 €

Reservado

Descrição

No coração de Setúbal, a poucos minutos do centro e das praias, encontra-se este apartamento T4, situado no 2.º andar de um prédio com alma. Uma casa onde o tempo deixou marcas de histórias vividas e onde cada divisão guarda a promessa de um novo começo.

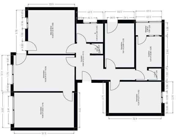
Com 114,8m² de área bruta e 11,44m² de área dependente, o apartamento mantém-se original, mas repleto de potencial para transformação. A disposição equilibrada das divisões permite várias soluções — desde uma remodelação total que una cozinha e sala num amplo open space, até à criação de um espaço social mais generoso, mantendo três ou quatro quartos, conforme o sonho de quem aqui quiser recomeçar.

A luz atravessa a casa com naturalidade, revelando um ambiente acolhedor e autêntico, pronto para ganhar nova vida. O edifício conserva o espírito sólido das construções antigas e a localização oferece o melhor dos dois mundos: proximidade à cidade e serenidade residencial.

Este é o tipo de apartamento que inspira: não apenas um lugar para morar, mas um projecto para imaginar, criar e transformar à medida de quem o habita.

Um espaço com alma, à espera de se reinventar.

Disponível para partilha com todas as imobiliárias e profissionais do mercado com licença AMI em regime de 50%/50%.

As presentes informações correspondem às características do imóvel, mas não dispensam a sua confirmação, não podendo esta informação ser considerada vinculativa.

Caminho Nómada, Lda.
AMI 20261

Detalhes

  • N01-52
  • Compra
  • Usado
  • 126,24 m²
  • 90,91 m²
  • 4
  • 2

Manuel Oliveira

968037442 (Chamada para a rede móvel nacional)
manuel.oliveira@caminhonomada.pt

Pedido de Informações

Esclareça as suas dúvidas acerca do imóvel

Características

Classificação Energética

  • Classificação: ;

Exterior

    Estacionamento

      Divisões

      • Quartos: ;
      • WC´s: ;